Ključne specifikacije
- 3 Bedrooms
- 3 Bathrooms
- 168 m2
- Year Built: 2025
- 4 Rooms
Description
Vila Mušalež
Ponosno predstavljamo čudovito novogradnjo, ki je zasnovana za tiste, ki cenijo naravo, zasebnost in udobje sodobnega življenja. Ta moderna samostojna hiša, obdana z zelenjem in mirnim okoljem, je idealna izbira za družine, ki iščejo miren oddih ali investitorje, ki želijo ustvariti vrhunsko turistično izkušnjo. Hiša je v celoti opremljena.
Ključne značilnosti nepremičnine:
- Neto površina: 168 m²
- Parcela: 510 m2
- Terasa: 17 m² – prostor za uživanje na svežem zraku
- Bazen
- Število spalnic: 3 – prostorne in svetle
- Število kopalnic: 3 – moderno zasnovane s kakovostno opremo
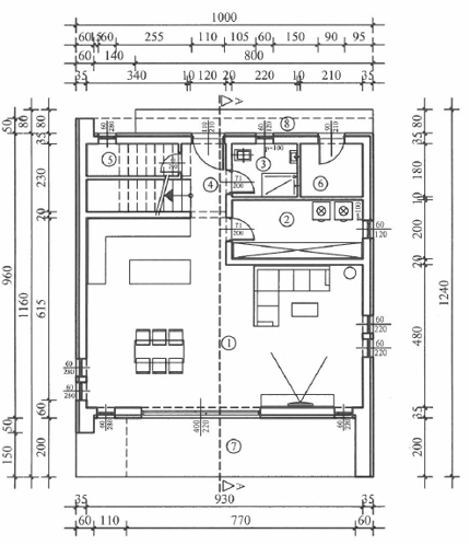
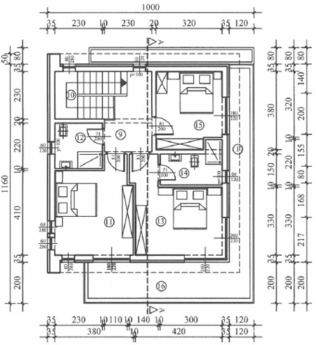
Notranjost hiše:
Hiša se razteza na dveh etažah, s prostornimi in svetlimi bivalnimi prostori, sodobno razporeditvijo ter visokokakovostnimi materiali.
- Pritličje: Obsežna dnevna soba z odprtim konceptom vključuje moderno kuhinjo in jedilnico, kar omogoča druženje in zabavo. Iz dnevne sobe je izhod na prostorno teraso in bazen, ter vrt ki je obdan z oljkami. V pritličju se nahaja še hodnik, tehnični prostor / shramba, kopalnica, praktična delovna soba ali dodatna kuhinjska shramba ter kurilnica z zunanjim vhodom.
- Nadstropje: Tu se nahajajo tri prostorne spalnice, vsaka z dostopom do terase, kjer lahko uživate v čudovitih sončnih zahodih. Glavna spalnica ima svojo kopalnico z WC-jem. V nadstropju se nahaja tudi skupna kopalnica.
Tehnične specifikacije:
- Oprema: Vgrajen je parket v sobah in stopnišču, v kopalnicah in ostalih prostorih so tla iz mikrocementa, sanitarna oprema (tuš kabina, wc školjka, umivalnik), opremljene spalnice in tudi kuhinja, ki je vključena v ceno.
- Ogrevanje: Talno ogrevanje, ki zagotavlja prijetno temperaturo skozi vse leto.
- Hlajenje: Klimatska naprava za udobje v vročih poletnih mesecih.
- Možnosti dodatne opreme: V dnevni sobi je možnost vgradnje kamina za dodatno prijetnost in toplino.
- Okolica: Okolica bo za zelenela, posajene so oljke, napeljan je namakalni sistem…
- Alarmni sistem, protivlomna vrata, video domofon
Zunanjost in okolica:
Mušalež je slikovito naselje v osrčju Istre, le približno 3 kilometre od Poreča, enega najbolj obiskanih mest na zahodni obali Hrvaške. Kraj leži v rahlo dvignjenem delu istrskega zaledja, obdan z oljčnimi nasadi, vinogradi in neokrnjeno naravo, kar mu daje poseben čar in občutek pristnega istrskega življenja.
Mušalež je znan po miru, zasebnosti in prijetnem ruralnem vzdušju, ki ga cenijo tako domačini kot obiskovalci, ki iščejo oddih od mestnega vrveža. Kljub umirjenemu okolju je kraj odlično povezan – do centra Poreča, plaž, restavracij in vseh potrebnih storitev je le nekaj minut vožnje.
Idealna priložnost:
Ta nepremičnina je odlična izbira za vse, ki iščejo mir, zasebnost in udobje ali pa želijo vlagati v nepremičnino, ki ima velik potencial za turistične namene.
Oglaševana cena vključuje PDV (25%)!
Za več informacij o razpoložljivosti, cenah in načrtih za prihodnost, se obrnite na našo ekipo, ki vam bo z veseljem pomagala pri vaši odločitvi. Brez provizije za kupca!
























